Pronat jane ne proces listimi. Nese keni ndonje kerkese specifike ju lutem na kontaktoni!

Shitje

176,000 €

SHITET ME KREDI APARTAMENT 1+1 REZIDENCA ABA2

Farkë Kompleksi ABA2 Farke Tirana

Detajet e Prones

Referenca: PRO542
Lloji: Apartament
Statusi: Listimet e fundit
Dhomat e gjumit: 1
Tualetet: 1
Sallon: 1
Website Views: 157
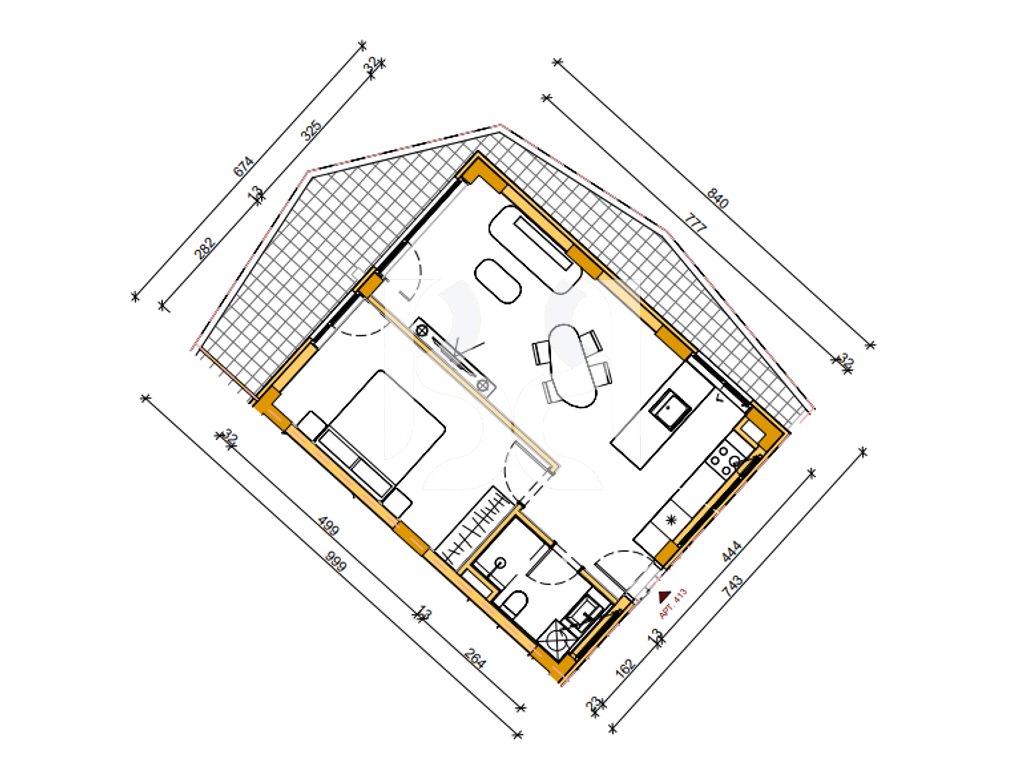
Sip. e brendshme: 76 m2
Sip. Totale: 88 m2
Kati: 2

Pershkrimi i Prones

Rezidenca ABA2
Ndodhet ne nje nder zonat me te qeta te Tiranes dhe me nje lokacion shume te mire sa i perket daljes ne autostrade dhe qender.
• Sip 87.9 m2
• Cmimi 167000 euro
• Orientimi: Perendim
• Lartesia e katit 2.80 m
• Ambiente te gjelberuara
• Aspirim i dedikuar
• Fasada e termoizoluar
• Dritare me alumin termik
• Ashensori Schiendler
• Instalime sistemi kondicionimi multisplit
• Tuba furnzimi me uje multistrat
• Boje minerale pa kimikate, Keim
• Hidroizolim tarraca, nentoka, llozha, driatre, tualete
• Dyer te brendshme gjermane Lebo
• Dere e blinduar
• Hidrosanitare inkaso
• Laminat AC5 8mm
• Pllaka porcelan ne tualet 120*60
• Konstruksioni per termetet deri ne 10 balle
• Kreditim deri ne 100%
• Administrim i rregullt dhe lagje shume e qete.

Organizimi:
• Korridor Shpërndarës
• Sallon Ndënjie + Ambient Gatimi
• 1 Dhome Gjumi
• 1 Tualet
• Dyshemeja parket
• Dritaret dopjo xham
• Dera Blind
•Ne rast se deshironi te shikoni pronen, atehere ne si zyre ndermjetesimi u kerkojme nje plotesim formulari qe nenkupton qe kjo prone eshte vizituar nga ju duke e firmosur ne
momentin e shoqerimit.
• Per me shume informacion me kontaktoni 068 53 000 91

real estate agent | Iluminatum Residence | Riverside Residence | Soho Tours | Urban Real Estate | Future | Century | Shtepi | Apartament
luxury house | real estate house tour | house tour | maryland house | georgian house | mediterranean house | saltburn house | real estate Albania | real estate Tirana | real estate durres | real estate vlore | real estate Kosovo | property|apartamente në shitje Rezidenca Kadiu | shitet apartament te Rezidenca Kadiu | bli apartament në Rezidencën Kadiu | investim në Rezidencën Kadiu | Rezidenca Kadiu Tirana apartamente | apartament i ri Rezidenca Kadiu | Rezidencën Kadiu blerje apartamenti

#RezidencaKadiu | #ApartamenteNeShitje | #ApartamenteTirane | #ShitetApartament | #BliApartament | #ApartamentILuxit | #JetëNëRezidencë | #InvestimNeTirane | #RezidencaKadiuTirane | #ApartamenteTeReja #RealEstateAlbania | #ShtepiNeShitje | #BlerjeApartament | #TiraneRealEstate | #RezidencaModerne | #ApartamenteMePamje | #JeteseKomode | #InvestoNeKadiu | #ShitetApartamentTirane | #BanesëENdërave
#ShitetApartament #ApartamenteNeShitje #RealEstateAlbania #ShtepiNeShitje #InvestimNeShtepi #ApartamenteTirane #ProneNeShitje
#RezidencaABA2 #ABA2Residence #Tirane #TiraneRealEstate #JeteKomode #RezidencaModerne #ZoneElitare #RezidencaLuksoze #MeKredi
#BliMeKredi #KrediBanesash #KrediPerApartament #MundesiPagese #ApartamentMeKredi #1plus1 #Apartament1plus1 #JeteERe #ShtepiaJote
#ShtepiERe #EndrraJote #ApartamentIdeal #JetëKomode #JetëNëRezidencë #ModernLiving #InvestoNeTirane

Karakteristikat

Embassay
Farmacy
Bus Station
Bakery
View to City
Garden