Pronat jane ne proces listimi. Nese keni ndonje kerkese specifike ju lutem na kontaktoni!

Shitje

92,000 €

SHITET APARTAMENT 1+1+BALLKON NE REZIDENCEN OXA TIRANE

Linzë Rezidenca OXA Tirana

Detajet e Prones

Referenca: PRO559
Lloji: Apartament
Statusi: Listimet e fundit
Dhomat e gjumit: 1
Tualetet: 1
Sallon: 1
Website Views: 1577
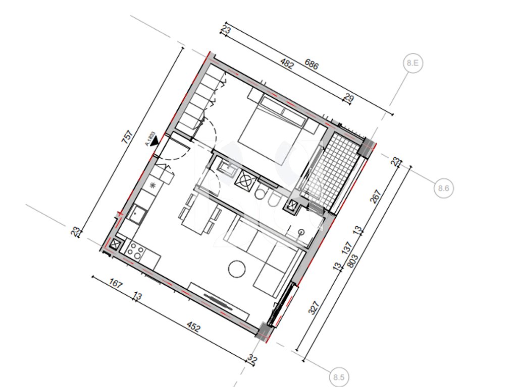
Sip. e brendshme: 54 m2
Sip. Totale: 61 m2
Kati: 3

Pershkrimi i Prones

Në një nga zonat më të kërkuara të Tiranës, Rezidenca OXA ofron standarde të larta ndërtimi, komoditet dhe siguri për jetesë afatgjatë.
Apartamenti me tipologji 1+1 ndodhet në katin e 3-të të një ndërtese moderne dhe të termoizoluar, me fasadë elegante, ashensor Schindler, dhe ambient të gjelbëruar përreth.
Hapësirat e brendshme janë projektuar me kujdes për ndriçim natyral gjatë gjithë ditës, falë orientimit Jug-Lindje dhe dritares në tualet.
Te dhena mbi pronen:
💰 Çmimi: 92,000 €
📍 Rezidenca OXA, Rruga “Dalip Topi”, Fresku / Linza, Tiranë
🏢 Kati: 3
📐 Sipërfaqe totale: 60.9 m² | Sipërfaqe neto: 53.5 m²
🌅 Orientimi: Jug – Lindje
⬆️ Lartësia e katit: 2.95 m

🏗 Konstruksion antisizmik – i projektuar për të përballuar deri në 10 ballë
🌡 Fasadë termoizoluese për kursim energjie
🌬 Aspirim i dedikuar në çdo ambient
❄️ Sistem kondicionimi multisplit i instaluar
🚿 Tualet me dritare, me ventilim natyral
🚰 Tuba furnizimi me ujë multistrat
🎨 Bojë minerale KEIM, pa kimikate
💧 Hidroizolim i plotë (tarraca, nëntoka, llozha, dritare & tualete)
🚪 Dyer të brendshme gjermane LEBO
🔒 Derë e blinduar me siguri të lartë
🚿 Hidrosanitare inkaso moderne
🪵 Laminat AC4 – 8 mm
🧱 Pllaka porcelani 120×60 në tualet
🪟 Dritare & grila alumini termik
⬆️ Ashensor Schindler – cilësi dhe siguri gjermane

Avantazhet e Rezidencës OXA
Kompleks rezidencial me ambiente të gjelbëruara dhe ajër të pastër
Pamje e hapur drejt malit të Dajtit
Qetësi, siguri dhe komunitet i mirëorganizuar
Ndërtesë e ndërtuar me standarde bashkëkohore evropiane
Akses i shpejtë me qendrën e Tiranës dhe rrugët kryesore

Per nje vizite ne prone na kontaktoni ne numri e telefonit: 068 53 000 91


#RezidencaOXA #OXAResidence #Fresku #Linza #Dajt #Tirane #ApartamentTirane #Apartament1plus1 #ApartamentNeShitje #ShitjeApartament #ApartamenteTirane #PronaTirane #ShtepiTirane #RealEstateTirane #InvestimNeTirane #ApartamentModern #Apartament92mijeEuro #ApartamentJugLindje #ApartamentMePamje #RezidenceLuksoze #JeteseCilesore #OXA #RezidencaOXATirane #OXARezidence #TiraneProperty #RealEstateAlbania #ApartamenteNeShitje #BaneseTirane #InvestimISigurt

Karakteristikat

Hotel
Restaurant
Bus Station
Bakery
View to Mountain
View to City