Pronat jane ne proces listimi. Nese keni ndonje kerkese specifike ju lutem na kontaktoni!

Shitje

99,000 €

Apartament 1+1 në shitje në Nokia Residence Rezidencë e re nga Kontakt Ali Demi Tiranë me kredi deri ne 80%

Ali Demi Ali Demi Tirana

Detajet e Prones

Referenca: PRO835
Lloji: Apartament
Statusi: E perdorur
Dhomat e gjumit: 1
Tualetet: 1
Sallon: 1
Website Views: 18
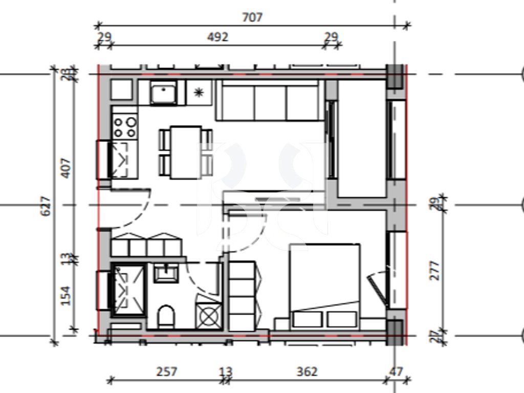
Sip. e brendshme: 42 m2
Sip. Totale: 52 m2
Kati: 3

Pershkrimi i Prones

Ofrohet për shitje apartament modern 1+1 në Nokia Residence, një projekt bashkëkohor në zonën Ali Demi, Tiranë
Prona përfaqëson një zgjedhje ideale si për banim familjar ashtu edhe për investim afatgjatë në një rezidencë të re me standarde të larta ndërtimi.
📐 Të dhëna kryesore të pronës:
• Tipologjia: Apartament 1+1
• Sipërfaqe totale: 52.2 m²
• Sipërfaqe e brendshme: 42.4 m²
• Kati: 3
• Orientimi: Veri
• 1 Sallon + Kuzhinë
• 1 Dhome gjumi
• 1 Tualet me dritare
• Lartësia e katit: 2.78 m

✨ Karakteristika & Cilësi Ndërtimi:
• Fasadë termoizoluese dhe eficiencë energjetike
• Dritare alumini termik dhe hidroizolim i plotë
• Konstruksion antisizmik
• Instalime për kondicionim multisplit
• Tuba multistrat për furnizim uji
• Dyer të brendshme gjermane dhe derë e blinduar
• Laminat cilësor AC5 dhe pllaka porcelani në tualet
• Ambiente të gjelbra dhe hapësira relaksi në rezidencë
📍 Vendndodhja strategjike në Ali Demi ofron akses të shpejtë me qendrën e Tiranës dhe shërbime të shumta pranë si farmaci, stacion autobusi, markete dhe ambiente sociale.
💰 Çmimi: 99,000 €
📩 Na kontaktoni për planimetrinë, detaje shtesë dhe vizitë në pronë.
068 644 48 87


#NokiaResidence #ApartamentNeShitje #Tirane #RezidenceRe #Apartament2plus1 #KrediBankare #Kontakt

Karakteristikat

Hotel
Restaurant
Farmacy
University
Bus Station
Bakery
Gym
View to City