Pronat jane ne proces listimi. Nese keni ndonje kerkese specifike ju lutem na kontaktoni!

Shitje

84,000 €

SHITET APARTAMENT 1+1 NE REZIDENCA BALLADA LIQENI I FARKES

Farkë Rezidenca Ballada Tirana

Detajet e Prones

Referenca: PRO853
Lloji: Apartament
Statusi: Ne Ndertim
Dhomat e gjumit: 1
Tualetet: 1
Sallon: 1
Website Views: 8
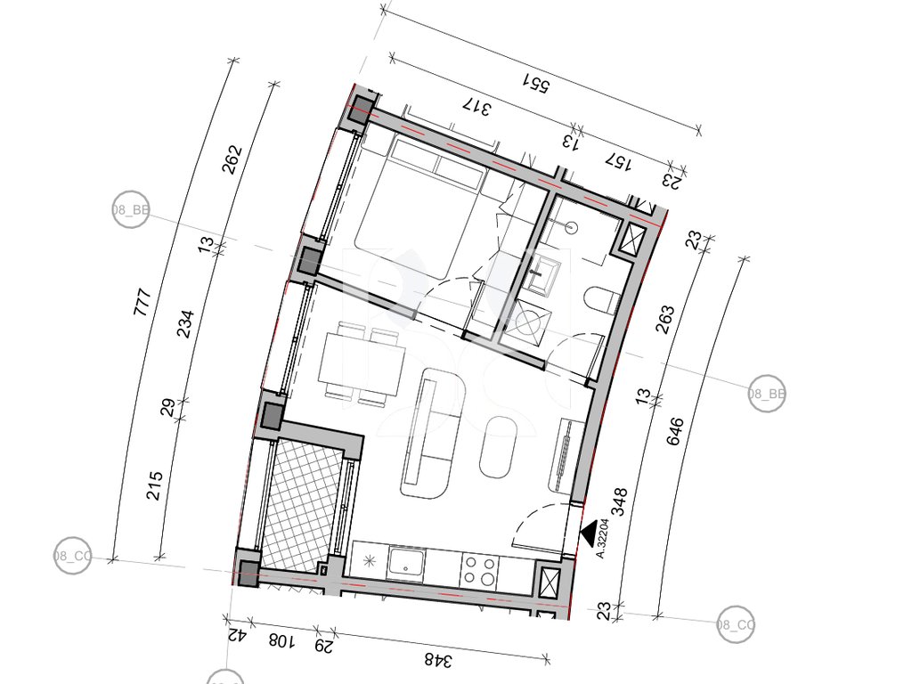
Sip. e brendshme: 39 m2
Sip. Totale: 46 m2
Kati: 2

Pershkrimi i Prones

Rezervo me vetëm 1000euro apartamentin tënd në Rezidencën Ballada, një nga projektet më të reja dhe më të
kërkuara për jetesë moderne. Ballada përfaqëson një zgjedhje ideale për ata që kërkojnë cilësi ndërtimi, organizim
funksional dhe një ambient të qetë për jetesë.Rezidenca dallohet për pozicionim të favorshëm, aksesueshmëri të shkëlqyer dhe lidhje të lehtë me pikat kryesore të zonës,duke ofruar komoditet maksimal në përditshmëri. Vendndodhja dhe koncepti bashkëkohor e bëjnë këtë projekt një mundësi
me vlerë të shtuar, si për banim ashtu edhe për investim.
🏡 Të dhëna për Pronën
• 💶 Çmimi: 84,000 €
• 🏢 Tipi i Pronës: Apartament 1+1
• 🚶‍♂️ Kati: 2
• 📐 Sipërfaqja: 46.4m² (bruto) , 39.4m² (neto)
• 🧭 Orientimi:Perendim
• 📏 Lartësia e Katit: 2.78 m
• 🚿 Tualeti: Me dritare, funksional dhe higjienik
🌿 Komoditet & Cilësi Jetese
• 🌳 Ambiente të gjelbra dhe hapësira relaksi
• 🌬️ Aspirim i dedikuar për ajrosje optimale
• ❄️ Instalime për kondicionim multisplit
• 💧 Tuba furnizimi me ujë multistrat, cilësi dhe jetëgjatësi
🏗️ Ndërtim & Siguri
• 🏠 Fasadë termoizoluese, eficiencë energjetike
• 🪟 Dritare & grila alumini termik
• 💦 Hidroizolim i plotë (tarracë, nëntokë, dritare, tualete)
• 🔥 Konstruksion antisizmik deri në 10 ballë
🎨 Përfundime të Brendshme
• 🎨 Bojë minerale KEIM, pa kimikate
• 🚪 Dyer të brendshme gjermane LEBO
• 🛡️ Derë e blinduar për siguri maksimale
• 🧼 Hidrosanitare inkaso, dizajn modern
• 🛏️ Laminat AC5 – 8 mm, rezistent dhe elegant
• 🚻 Pllaka porcelani 120×60 cm në tualet
📞 Për çdo informacion ose interes, mos hezitoni të kontaktoni në:
069 886 8169
📌 Në rast se dëshironi të vizitoni pronën, si zyrë ndërmjetësimi kërkojmë plotësimin e një formulari,
i cili konfirmon vizitën e pronës dhe firmoset në momentin e shoqërimit.
#RezidencaBallada#BibaProperty#
#Ballada#BalladaResidence#RezidenceBallada#BalladaLiving#BalladaHomes#JeteseModerne
#KomoditetDheCilesi#ApartamentNeShitje#ApartamenteNeShitje#ApartamentPerShitje
#ShitetApartament#ShitetNeRezidence#PronaNeShitje#PronaTeReja#InvestimIMire#ShitetMeKredi
#ApartamentMeKredi#KrediBankare#KrediDeri8%0#KrediDeri80#NdertimIRi#NdertimCilesor
#FasadeTermoizoluese#DritareTermike#IzolimTermik#IzolimAkustik#StandardeEuropiane
#SiguriMaksimale#FinancimBankar#MundesiKredie#BliMeKredi

Karakteristikat

Shower
Kindergarden
Taxi Station
Farmacy
Bus Station
Bakery
View to Lake
View to City
Garden