Pronat jane ne proces listimi. Nese keni ndonje kerkese specifike ju lutem na kontaktoni!

Shitje

210,000 €

SHITET DUPLEX NE REZIDENCEN KODRA E DIELLIT*

Kodra e Diellit Residence Tirane Tirana

Detajet e Prones

Referenca: PRO1011
Lloji: Dupleks
Statusi: Listimet e fundit
Dhomat e gjumit: 2
Tualetet: 2
Sallon: 1
Website Views: 716
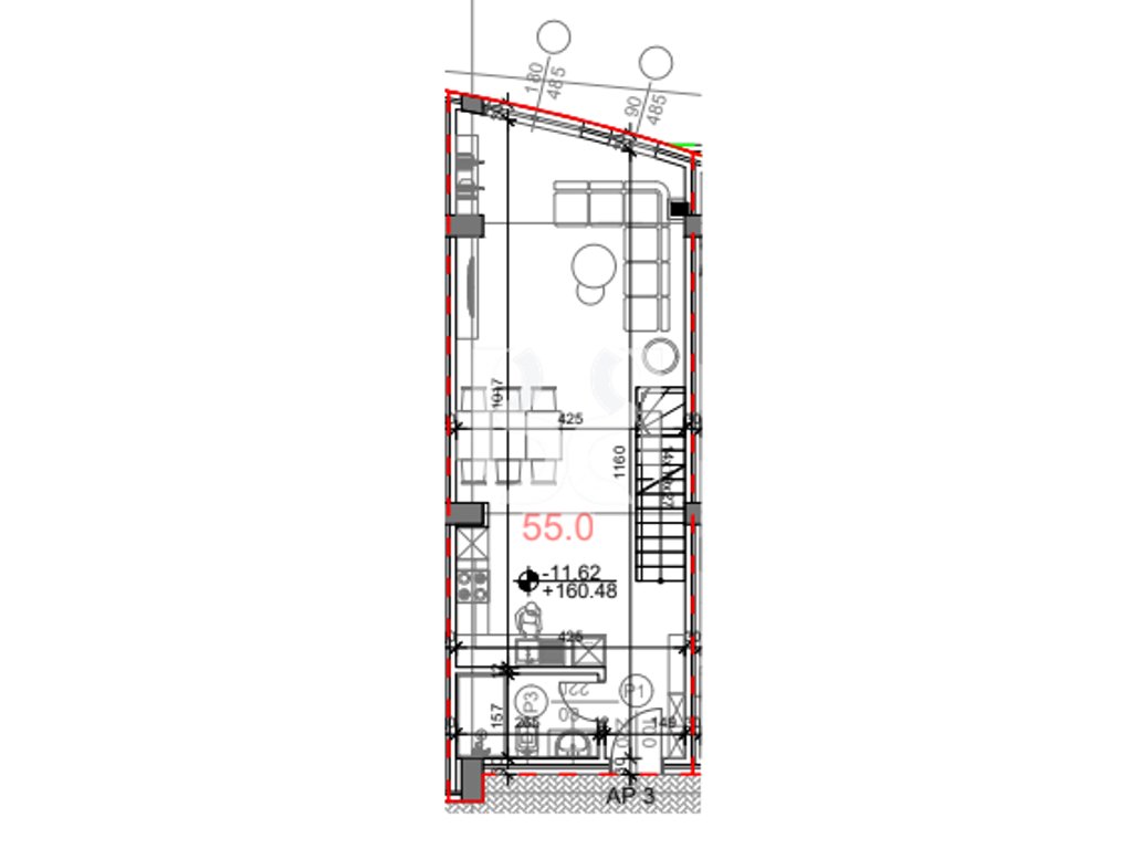
Sip. e brendshme: 97 m2
Sip. Totale: 115 m2
Kati: 1

Pershkrimi i Prones

Dublex në shitje – Hapësirë moderne dhe organizim perfekt për jetesë komode

Ofrohet për shitje një duplex elegant dhe funksional, ideal për familje ose investim, i konceptuar për të ofruar rehati maksimale dhe shfrytëzim optimal të çdo metri katror. Me organizim të rregullt dhe ambiente të ndriçuara natyralisht, kjo pronë është një zgjedhje shumë e mirë për banim cilësor.

Të dhëna kryesore të pronës
• Duplex
• Siperfaqe fizike: 97m²
• Sipërfaqe totale: 115.43 m²
• Çmimi: 210,000 Euro

Organizimi i Apartamentit
• 1 Dhomë ndenjeje e bollshme dhe komode
• 1 Kuzhinë funksionale
• 2 Dhoma gjumi me hapësira të rregullta
• 2 Tualete
• 1 Ballkon
• Koridor shpërndarë
Karakteristika & Avantazhe
• Planimetri shumë funksionale
• Hapësira të bollshme për familje
• Ndriçim natyral në ambientet kryesore
• Ballkon i përshtatshëm për relaks
• Ideale si për banim ashtu edhe për investim
• Raport shumë i mirë mes sipërfaqes dhe organizimit

Ky apartament ofron kombinimin ideal të komoditetit, funksionalitetit dhe stilit modern të jetesës. Me sipërfaqe të konsiderueshme dhe organizim shumë praktik, është një mundësi perfekte për ata që kërkojnë një shtëpi të rehatshme në një investim të sigurt.

Për më shumë informacion ose për të organizuar një vizitë në pronë, na kontaktoni. 0688079791

#apartament #apartamentnshitje #apartament21
#realestate #propertyforsale #tirane
#investim #dreamhome #luxuryliving
#realestatealbania #homeforsale #newlisting

Karakteristikat

CountrySide
Taxi Station
Offices
Hotel
Farmacy
Bus Station
Bakery
Garden
View to City