Pronat jane ne proces listimi. Nese keni ndonje kerkese specifike ju lutem na kontaktoni!

Shitje

208,000 €

Apartament 2+1 në shitje në Nokia Residence Rezidencë e re nga Kontakt Ali Demi Tiranë Mundësi blerjeje me kredi deri në 80%

Ali Demi Rezidenca Nokia Tirana

Detajet e Prones

Referenca: PRO767
Lloji: Apartament
Statusi: Ne Ndertim
Dhomat e gjumit: 2
Tualetet: 1
Sallon: 1
Website Views: 30
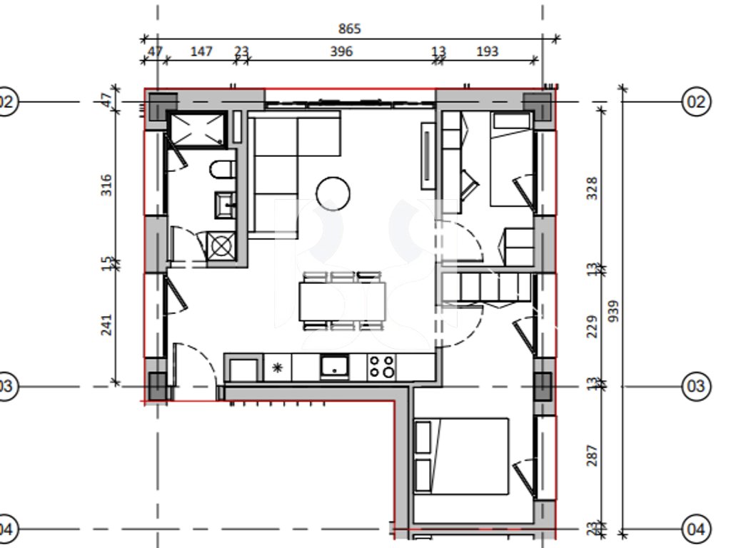
Sip. e brendshme: 66 m2
Sip. Totale: 81 m2
Kati: 8

Pershkrimi i Prones

Ofrohet për shitje apartament modern 2+1 në Nokia Residence, një projekt bashkëkohor në zonën Ali Demi, Tiranë. Prona është e përshtatshme për financim me kredi bankare deri në 80% dhe përfaqëson një zgjedhje ideale si për banim familjar ashtu edhe për investim afatgjatë në një rezidencë të re me standarde të larta ndërtimi.

📐 Të dhëna kryesore të pronës:
• Tipologjia: Apartament 2+1
• Sipërfaqe totale: 81.3 m²
• Sipërfaqe e brendshme: 66.0m²
• Kati: 8
• Orientimi: Veri - Lindje – Perëndim
• 1 Sallon + Kuzhinë
• 2 Dhoma gjumi
• 1 Tualet me dritare
• Lartësia e katit: 2.78 m

✨ Karakteristika & Cilësi Ndërtimi:
• Fasadë termoizoluese dhe eficiencë energjetike
• Dritare alumini termik dhe hidroizolim i plotë
• Konstruksion antisizmik
• Instalime për kondicionim multisplit
• Tuba multistrat për furnizim uji
• Dyer të brendshme gjermane dhe derë e blinduar
• Laminat cilësor AC5 dhe pllaka porcelani në tualet
• Ambiente të gjelbra dhe hapësira relaksi në rezidencë
📍 Vendndodhja strategjike në Ali Demi ofron akses të shpejtë me qendrën e Tiranës dhe shërbime të shumta pranë si farmaci, stacion autobusi, markete dhe ambiente sociale.
💰 Çmimi: 208,000 €
🏦 Mundësi blerjeje me kredi bankare deri në 80%.

📩 Na kontaktoni për planimetrinë, detaje shtesë dhe vizitë në pronë.
068 64 448 87


#NokiaResidence #ApartamentNeShitje #Tirane #RezidenceRe #Apartament2plus1 #KrediBankare #Kontakt

Karakteristikat

Hotel
Restaurant
Farmacy
Bus Station
Bakery
Gym
View to City