Pronat jane ne proces listimi. Nese keni ndonje kerkese specifike ju lutem na kontaktoni!

Shitje

126,000 €

SHITET ME KREDI DERI NE 80% NJESI SHERBIMI NE REZIDENCA NOKIA 126.000€

Ali Demi Tirane Tirana

Detajet e Prones

Referenca: PRO821
Lloji: Apartament
Statusi: Listimet e fundit
Dhomat e gjumit: 1
Tualetet: 1
Sallon: 1
Website Views: 46
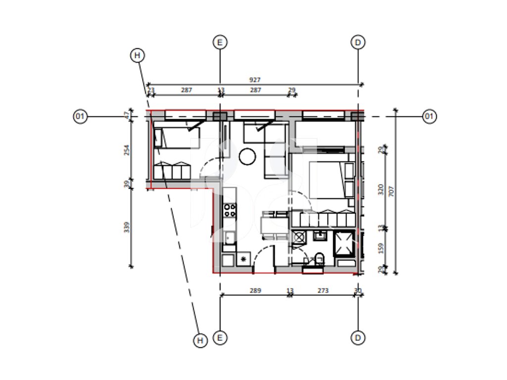
Sip. e brendshme: 54 m2
Sip. Totale: 66 m2
Kati: 5

Pershkrimi i Prones

Njesi Sherbimi në shitje në Nokia Residence – Rezidencë e re nga Kontakt, Ali Demi, Tiranë | Mundësi blerjeje me kredi deri në 80%
Ofrohet për shitje njesia e sherbimit modern në Nokia Residence, një projekt bashkëkohor në zonën Ali Demi, Tiranë.
Prona është e përshtatshme për financim me kredi bankare deri në 80% dhe përfaqëson një zgjedhje ideale si për banim familjar ashtu edhe për investim afatgjatë në një rezidencë të re me standarde të larta ndërtimi.
📐 Të dhëna kryesore të pronës:
* Tipologjia: Njesi Sherbimi
* Sipërfaqe totale: 66.1 m²
* Sipërfaqe e brendshme: 53.7 m²
* Kati: 5
* Orientimi: Veri
* 1 Tualet me dritare
* Lartësia e katit: 2.78 m
✨ Karakteristika & Cilësi Ndërtimi:
* Fasadë termoizoluese dhe eficiencë energjetike
* Dritare alumini termik dhe hidroizolim i plotë
* Konstruksion antisizmik
* Instalime për kondicionim multisplit
* Tuba multistrat për furnizim uji
* Dyer të brendshme gjermane dhe derë e blinduar
* Laminat cilësor AC5 dhe pllaka porcelani në tualet
* Ambiente të gjelbra dhe hapësira relaksi në rezidencë
📍 Vendndodhja strategjike në Ali Demi ofron akses të shpejtë me qendrën e Tiranës dhe shërbime të shumta pranë si farmaci, stacion autobusi, markete dhe ambiente sociale.
💰 Çmimi: 126,000 EURO
🏦 Mundësi blerjeje me kredi bankare deri në 80%.
📩 Na kontaktoni për planimetrinë, detaje shtesë dhe vizitë në pronë.0688079791
#NokiaResidence #ApartamentNeShitje #Tirane #RezidenceRe #NjesiSherbimi #KrediBankare #Kontakt#shitje #shitjeapartament #rezidencaNokia #NokiaResidence #apartament2plus1 #21Nokia
#BibaProperty #BibaPropertyShitje #cmimi126,000Euro #126,000Euro #lokacionPremium
#lokacionStrategjik #lokacionQendror #lokacionIdeal #rezidencaNeShitje #apartamentNeRezidenca
#shitjeNokia #proneNokia #investimNokia #BibaProperty#Nokia

Karakteristikat

School
Kindergarden
Taxi Station
Restaurant
Farmacy
Bakery
View to City