Pronat jane ne proces listimi. Nese keni ndonje kerkese specifike ju lutem na kontaktoni!

Shitje

85,000 €

SHITET GARZONIERE ME KREDI DERI NE 80% NJESI SHERBIMI NE REZIDENCA NOKIA 85.000€

Ali Demi Tirane Tirana

Detajet e Prones

Referenca: PRO828
Lloji: Apartament
Statusi: Ne Ndertim
Dhomat e gjumit: 1
Tualetet: 1
Sallon: 1
Website Views: 19
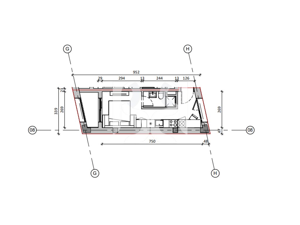
Sip. e brendshme: 32 m2
Sip. Totale: 39 m2
Kati: 5

Pershkrimi i Prones

Ofrohet për shitje Garsoniere moderne, me çmim 85,000 €, e pozicionuar në një kompleks bashkëkohor me standarde të larta ndërtimi dhe facilitete cilësore për një jetesë komode dhe investim të sigurt.

Informacion mbi pronën:
• Tipi: Garsoniere
• Shkalla: 1
• Kati: 5
• Sipërfaqja: 38.9 m²
• Orientimi: Lindje – Perëndim
• Lartësia e katit: 2.78 m

Garsonierja ofrohet me punime dhe materiale cilësore, me organizim funksional të hapësirës dhe ndriçim natyral gjatë gjithë ditës falë orientimit lindje–perëndim.

Specifikime dhe cilësi ndërtimi:
• Ambiente të gjelbëruara
• Aspirim i dedikuar
• Fasada e termoizoluar
• Dritare me alumin termik
• Ashensor Schindler
• Instalime për sistem kondicionimi multisplit
• Tuba furnizimi me ujë multistrat
• Bojë minerale pa kimikate (Keim)
• Hidroizolim i tarracës, nëntokës, lozhave, dritareve dhe tualeteve
• Dyer të brendshme gjermane Lebo
• Derë e blinduar
• Hidrosanitare inkaso
• Laminat AC5 8 mm
• Pllaka porcelani në tualet 120×60
• Konstruksion rezistent ndaj tërmeteve deri në 10 ballë
Prona përfaqëson një zgjedhje ideale si për banim ashtu edhe për investim, falë standardeve të larta të ndërtimit dhe pozicionimit në një zonë me zhvillim të shpejtë.
Për më shumë informacion ose për një vizitë në pronë, na kontaktoni 📞0687089791

#albania #realestateAlbania #realestateTirana
#garsoniere #apartamentNeShitje
#pronaTirane #investimImobiliar
#propertyAlbania #livingInTirana
#ndertimCilesor #apartamentModern
#kredi100 #homeForSale

Karakteristikat

CountrySide
School
Kindergarden
Taxi Station
Farmacy
Bus Station
Bakery
View To Park
View to City