Pronat jane ne proces listimi. Nese keni ndonje kerkese specifike ju lutem na kontaktoni!

Shitje

99,000 €

SHITET APARTAMENT 1+1 ME KREDI DERI NE 80% NE REZIDENCA NOKIA 99.000€

Ali Demi Rezidenca Nokia Tirana

Detajet e Prones

Referenca: PRO958
Lloji: Apartament
Statusi: Ne Ndertim
Dhomat e gjumit: 1
Tualetet: 1
Sallon: 1
Website Views: 12
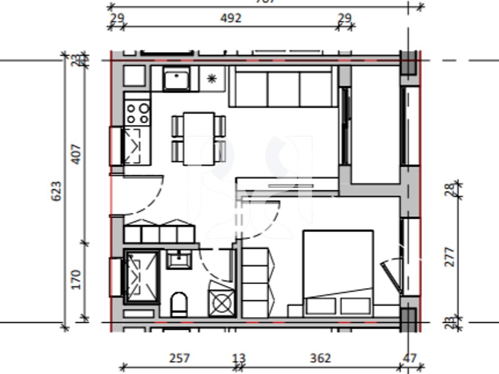
Sip. e brendshme: 42 m2
Sip. Totale: 52 m2
Kati: 3

Pershkrimi i Prones

Ofrohet për shitje apartament modern 1+1 në Nokia Residence, një projekt bashkëkohor në zonën Ali Demi, Tiranë
Prona përfaqëson një zgjedhje ideale si për banim familjar ashtu edhe për investim afatgjatë në një rezidencë të re me standarde të larta ndërtimi.

Të dhëna kryesore të pronës:
• Tipologjia: Apartament 1+1
• Sipërfaqe totale: 52.2 m²
• Sipërfaqe e brendshme: 42.4 m²
• Kati: 3
• Orientimi: Lindje
• 1 Sallon + Kuzhinë
• 1 Dhome gjumi
• 1 Tualet me dritare
• Lartësia e katit: 2.78 m

Karakteristika & Cilësi Ndërtimi:
• Fasadë termoizoluese dhe eficiencë energjetike
• Dritare alumini termik dhe hidroizolim i plotë
• Konstruksion antisizmik
• Instalime për kondicionim multisplit
• Tuba multistrat për furnizim uji
• Dyer të brendshme gjermane dhe derë e blinduar
• Laminat cilësor AC5 dhe pllaka porcelani në tualet
• Ambiente të gjelbra dhe hapësira relaksi në rezidencë

Vendndodhja strategjike në Ali Demi ofron akses të shpejtë me qendrën e Tiranës dhe shërbime të shumta pranë si farmaci, stacion autobusi, markete dhe ambiente sociale.
Çmimi: 99,000 €
Na kontaktoni për planimetrinë, detaje shtesë dhe vizitë në pronë.
068 644 48 87


#NokiaResidence #ApartamentNeShitje #Tirane #RezidenceRe #Apartament2plus1 #KrediBankare #Kontakt

Karakteristikat

Shopping Center
Train Station
Offices
Hotel
Restaurant
Farmacy
Bakery
Gym
View to City